Behälterdaten Mehrbehälter

Copyright bei
Peter Moosbrugger
2008

PowerBatch Behälterdaten Mehrbehälteranlagen

Bauteildaten für PowerBatch C Mehrbehälteranlagen in monolithischen Behältern

Anlagen-typ

Ein-wohne r

 

(EW)

Anzahl Be-hälter

Innen-
durch-
messer

(mm)

Gesamttiefe

 

(mm)

Luftverdichter

(Typ)

Tägliche Laufzeit in Std.

Elektrischer Anschluss- wert

 

 

 

 

 

 

 

 

PowerBatch

12

2

2000

2760

NITTO LA 120

10

130 Watt

PowerBatch

16

2

2000

3100

NITTO LA 120

13

130 Watt

PowerBatch

20

2

2000

3440

Becker DT 4.8

11

350 Watt

PowerBatch

20

2

2500

3040

Becker DT 4.10

10

370 Watt

PowerBatch

25

2

2500

3040

Becker DT 4.10

14

370 Watt

PowerBatch

30

2

2500

3380

Becker DT 4.10

15

370 Watt

PowerBatch

35

2

2500

3830

Becker DT 4.16

9

440 Watt

PowerBatch

40

2

2500

3830

Becker DT 4.16

10

440 Watt

PowerBatch

40

3

2500

3380

Becker DT 4.16

12

440 Watt

PowerBatch

40

4

2500

2730

Becker DT 4.25

10

750 Watt

PowerBatch

50

3

2500

3830

Becker DT 4.25

10

750 Watt

PowerBatch

50

4

2500

3380

Becker DT 4.25

10

750 Watt

Schachtabdeckungen Klasse A 50

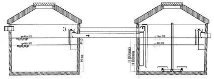
PowerBatch Skizze Mehrbehälter
[Home] [PowerBatch Verfahrensbeschreibung] [PowerBatch Kompakt] [PowerBatch Mehrbehälter] [PowerBatch Nachrüstung] [PowerBatch H] [PowerBatch K]